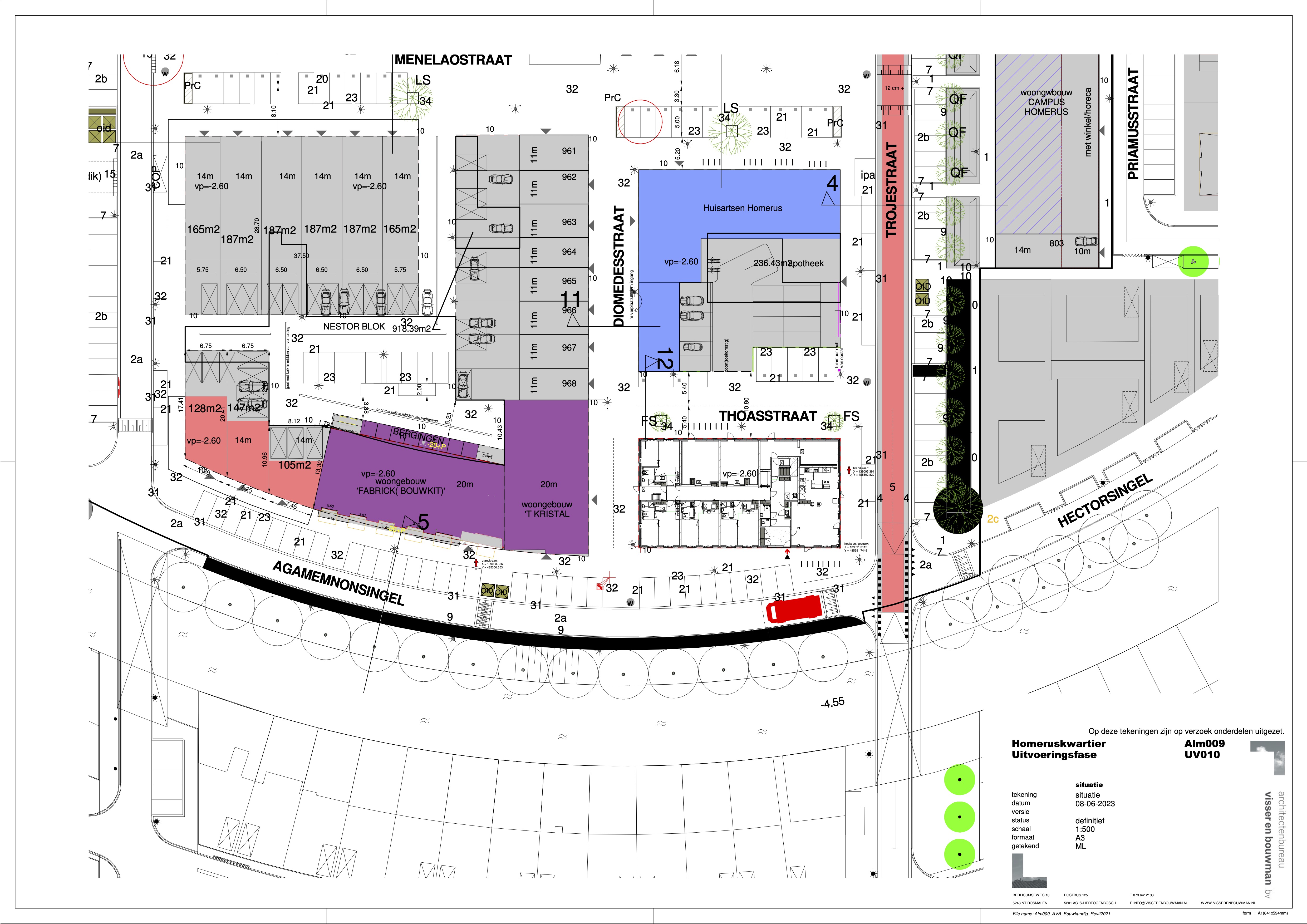
’t Homerushuis wordt gebouwd in het Homeruskwartier in Almere Poort op de hoek van de Trojestraat en Agamemnonsingel. Het gebouw komt vlak bij strand, bos, park, het centrum en openbaar vervoer.
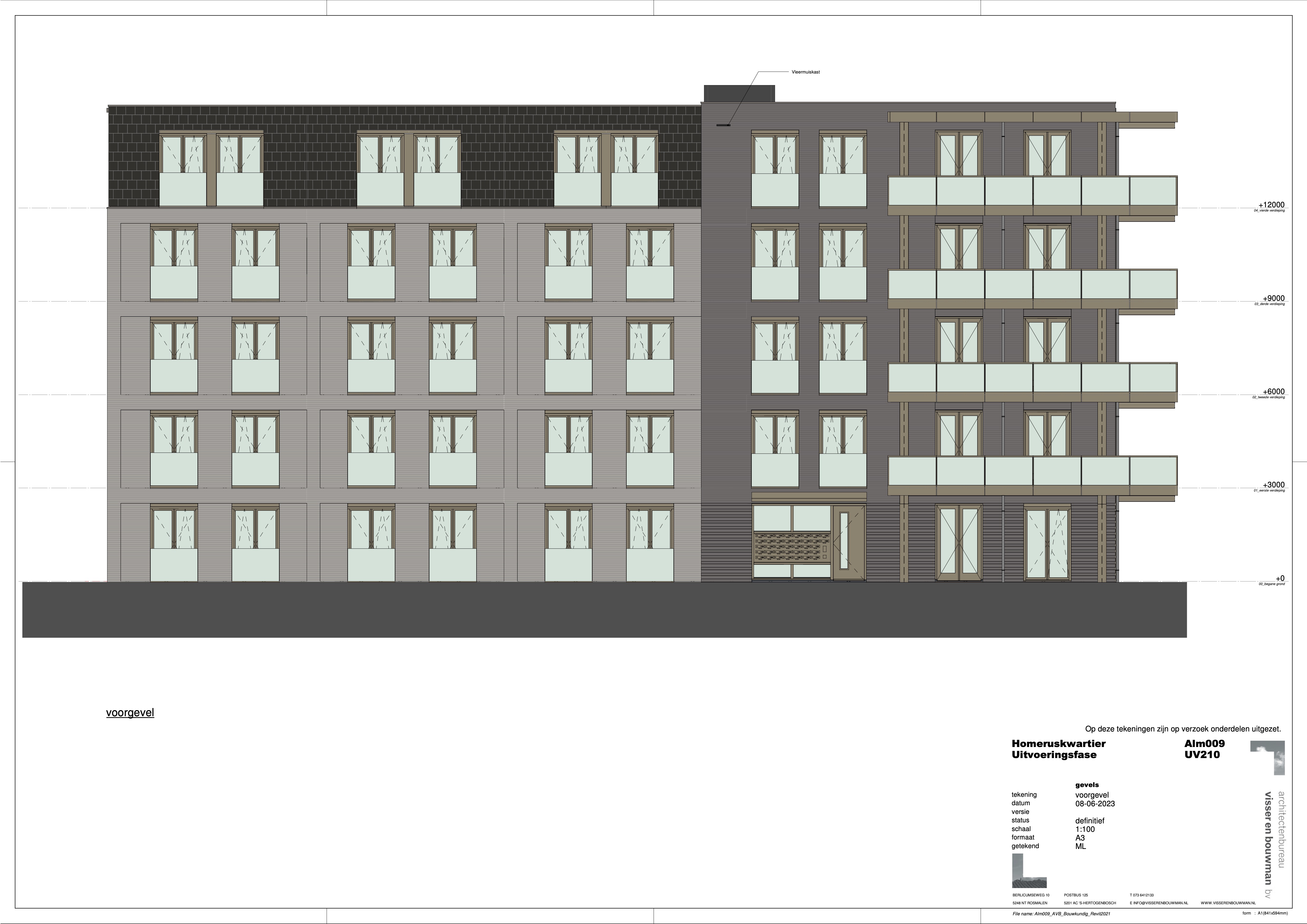
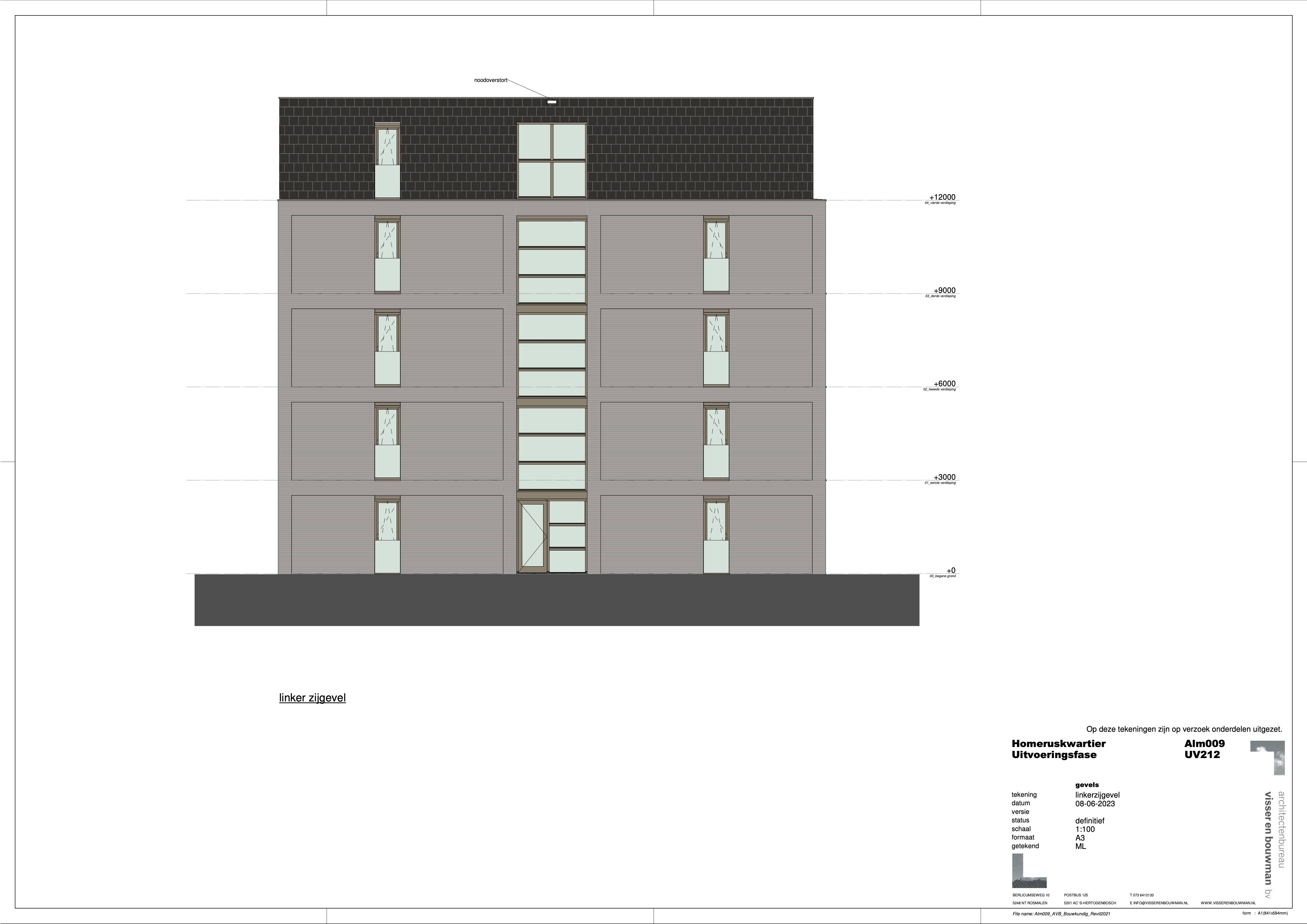
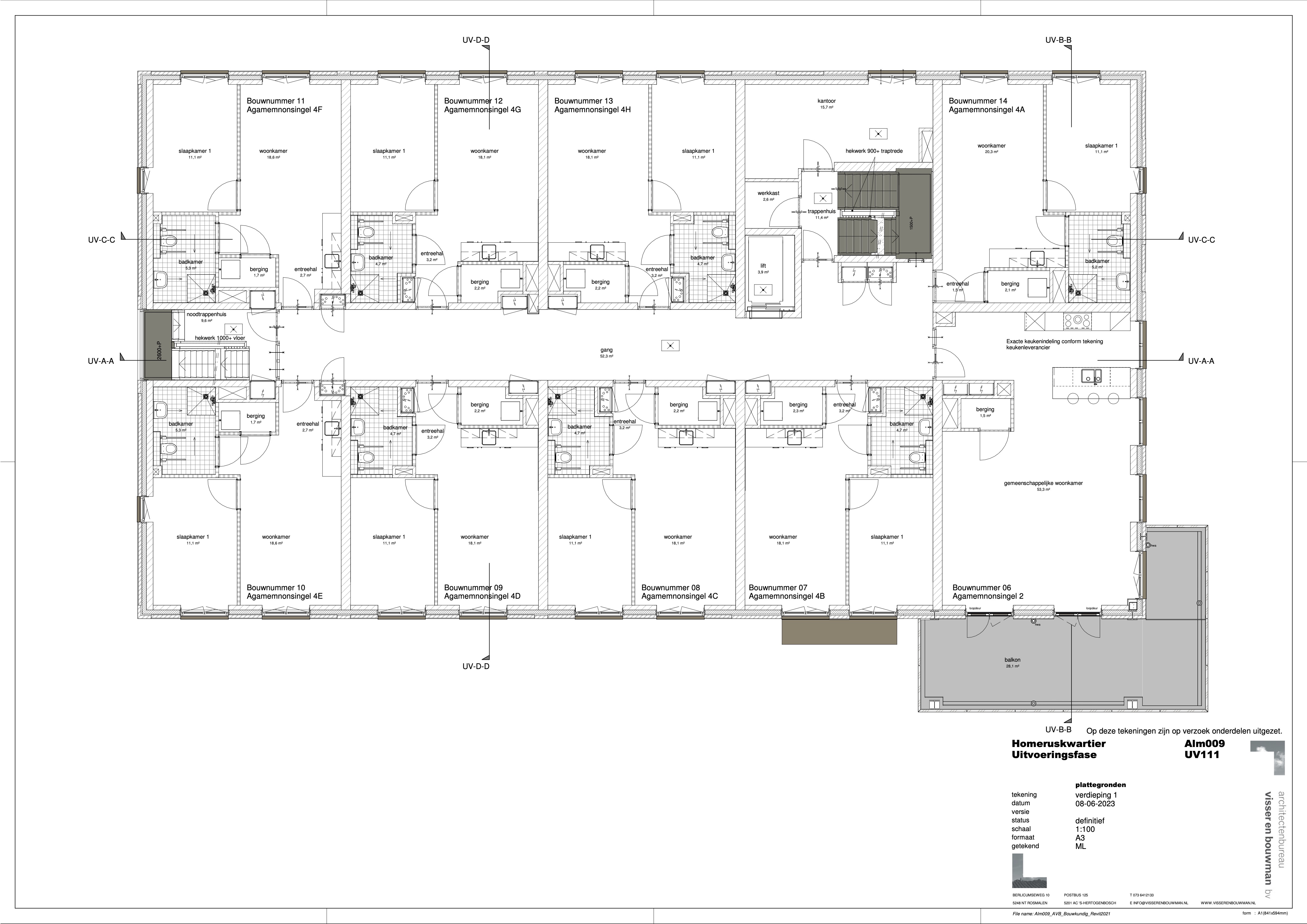
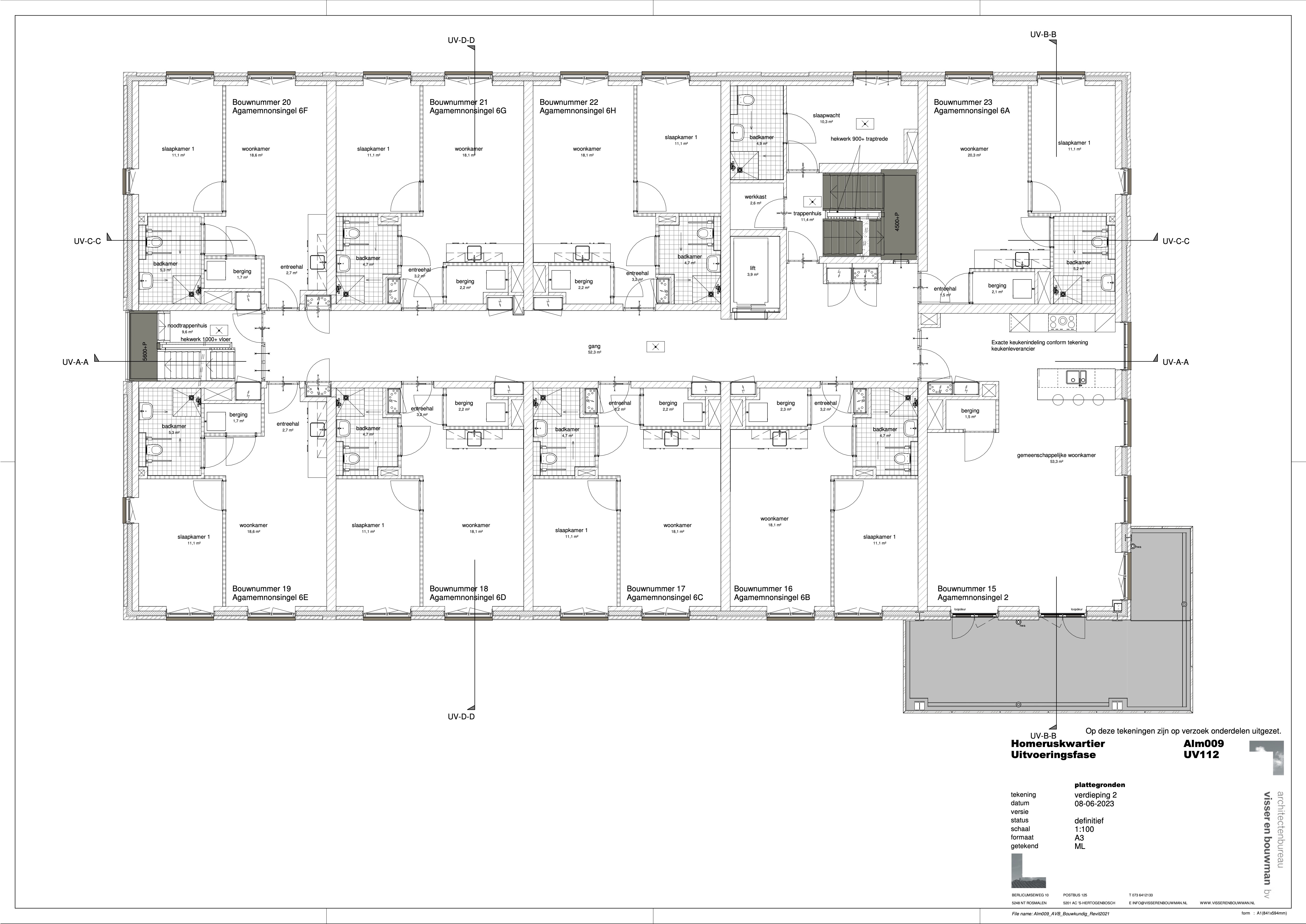
Iedere bewoner krijgt een appartement van ruim 40m2 met eigen douche en toilet, aparte slaapkamer en eigen keukenblokje. Er komen 8 appartementen op een verdieping en iedere verdieping krijgt hiernaast een grote gemeenschappelijke woon-eetkamer van bijna 50m2 met een groot terras van ruim 28m2. Er komen 4 van deze verdiepingen. Op de begane grond komen 4 appartementen, een grote gemeenschappelijke berging en een grote ontmoetingsruimte die bedoeld is voor alle bewoners van het Homeruskwartier.
’t Homerushuis is ontworpen door Bouwman Swinkels Architecten. De projectontwikkelaar is ZENZO Maatschappelijk Vastgoed en ’t Homerushuis wordt gebouwd door Aannemersbedrijf G.G. Aalten. Het interieur is ontworpen door Burobas en wordt gerealiseerd door TopCare Projectmeubelen. Het gebouw komt in eigendom van Stichting De Alliantie en wordt gehuurd van De Alliantie door Stichting Philadelphia Zorg.

De bouwvergunning
Gemeente Almere heeft ons toestemming gegeven om te bouwen. Officieel heet deze toestemming “de omgevingsvergunning”. Dit betekent dat de gemeente ons plan heeft gecontroleerd en goedgekeurd. Het plan voldoet dan aan de eisen van de gemeente en de overheid voor veiligheid en kwaliteit.
Na deze vergunning hadden toekomstige buurtbewoners en anderen de zes weken de tijd om bezwaar te maken. Er geen bezwaren zijn binnengekomen! Daar zijn we natuurlijk heel blij mee! We voelen ons welkom in de buurt! Dat heet officieel “de omgevingsvergunning is onherroepelijk geworden”. De vergunning is hiermee op 3 oktober 2022 definitief geworden!
Door de omgevingsvergunning is ook het adres bekend. Het huis en de ontmoetingsruimte krijgen het adres: Agamemnonsingel 2, 1363 VH Almere. De appartementen krijgen de huisnummers (van onder naar boven): 2A t/m 2D, 4A t/m 4H, 6A t/m 6H, 8A t/m 8H, 10A t/m 10H. De aannemer is nu aan het bouwen. In het najaar van 2024 hopen we er te kunnen gaan wonen.
De tekeningen hieronder komen uit het detailontwerp waarop de omgevingsvergunning is afgegeven. Als je op de tekeningen klikt kun je ze groter maken. Het volledige bouwboek met alle tekeningen kun je hier downloaden: (klik hier).
De plek

de gevels




De Verdiepingen





De Appartementen

